Trong hơn 17 năm hoạt động trong lĩnh vực thiết kế – thi công nội thất cao cấp, Open Space đã đồng hành cùng hàng trăm gia chủ tại TP.HCM và nhiều tỉnh thành khác để tạo nên những không gian sống vừa đẹp – bền – có cảm xúc.
Mỗi lời khen, mỗi phản hồi chân thành từ khách hàng chính là nguồn động lực quý giá, giúp chúng tôi không ngừng hoàn thiện và giữ vững triết lý:
“Không gian đẹp không chỉ để ngắm, mà để sống, để tận hưởng, và để kết nối.”
🌿 1. Giá trị thật đến từ trải nghiệm thật
Không phải ngẫu nhiên mà nhiều khách hàng tìm đến Open Space không chỉ một lần. Với chúng tôi, mỗi dự án không dừng lại ở việc “bàn giao chìa khóa”, mà là một hành trình kiến tạo không gian sống cá nhân hóa, trong đó khách hàng chính là người đồng sáng tạo.
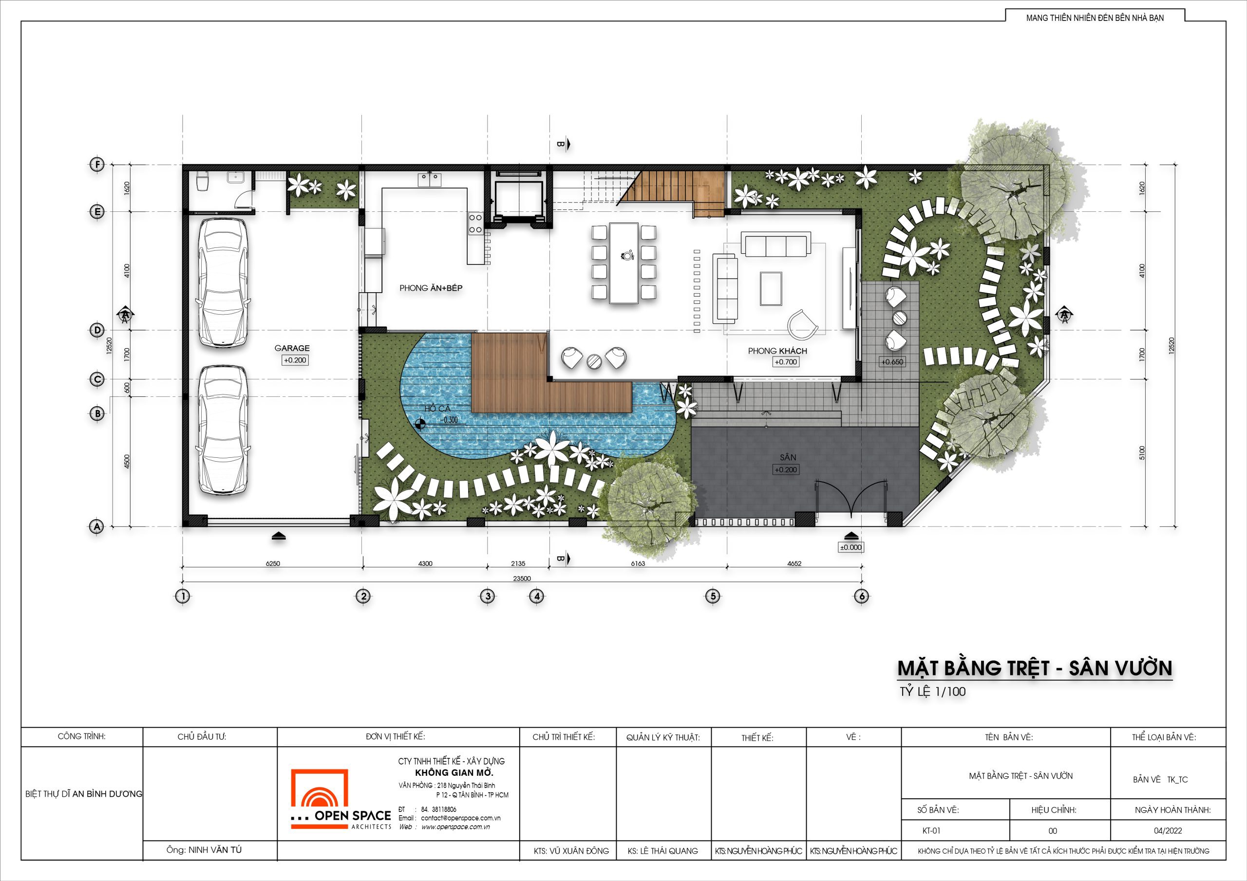
Khách hàng anh Tú (Bình Dương) chia sẻ:
“Tôi làm việc với Open Space cho căn biệt thự gia đình. Đến giờ, mọi chi tiết vẫn như mới, từ vật liệu cho đến bố trí công năng. Tôi rất ấn tượng với cách họ tư vấn kỹ lưỡng và sẵn sàng điều chỉnh để phù hợp với nhu cầu thực tế của gia đình.”
Đó là sự khác biệt của Open Space – chúng tôi không bán thiết kế, mà trao trải nghiệm sống trọn vẹn.
🏡 2. Tận tâm trong từng chi tiết – từ bản vẽ đến công trình hoàn thiện
Với đội ngũ kiến trúc sư, kỹ sư và thi công lành nghề, Open Space luôn đặt yếu tố chất lượng và cảm xúc làm trọng tâm.
Chị Oanh (Quận 7) – chủ nhân của một căn biệt thự do Open Space thực hiện – nói:
“Tôi thích cách Open Space lồng ghép thiên nhiên vào thiết kế. Ngôi nhà lúc nào cũng ngập tràn ánh sáng, thoáng đãng và gần gũi với cây xanh. Mỗi buổi sáng, chỉ cần ngồi ở phòng khách là thấy mình như được sống chậm lại.”
Đó cũng là triết lý xuyên suốt của Open Space – “Kết nối thiên nhiên cho không gian Việt.” Không gian sống không chỉ là nơi trú ngụ, mà là nơi để hít thở, thư giãn và nuôi dưỡng cảm xúc tích cực mỗi ngày.
🌳3. Thiết kế sang trọng – Thi công chuẩn chỉnh – Bảo hành tận tâm
Gia đình anh Cung (TP.Thủ Đức) – một trong những khách hàng thân thiết của Open Space – đã chia sẻ:
“Chúng tôi yêu thích phong cách thiết kế không gian mở – xanh, và đội ngũ Open Space đã thể hiện điều đó hoàn hảo. Ngôi nhà trông đơn giản nhưng rất tinh tế, vật liệu cao cấp, tông màu ấm cúng. Hơn hết là họ theo sát dự án đến tận khâu hoàn thiện, khiến tôi hoàn toàn yên tâm.”
Điều khiến Open Space khác biệt không chỉ là gu thẩm mỹ cao cấp, mà còn là tinh thần trách nhiệm sau dự án.
Chúng tôi cam kết:
- Quy trình thiết kế – thi công minh bạch, có sự đồng hành của gia chủ ở từng giai đoạn.
- Chính sách bảo hành & hậu mãi dài hạn, luôn sẵn sàng hỗ trợ dù dự án đã hoàn tất.
- Đội ngũ chuyên môn cao, tận tâm và sáng tạo, đảm bảo mỗi công trình là một tác phẩm riêng biệt.
🩶 4. Niềm tin được xây dựng từ uy tín – hơn 17 năm đồng hành cùng khách hàng Việt
Kể từ khi thành lập, Open Space đã trở thành đối tác tin cậy của nhiều chủ đầu tư và gia đình tại TP.HCM, Bình Dương, Vũng Tàu và Đồng Nai…
Từ biệt thự nghỉ dưỡng ven sông, căn hộ cao cấp, đến không gian làm việc sáng tạo, mỗi công trình đều mang “chất Open Space” – đề cao tính cá nhân hóa, kết nối thiên nhiên và bền vững theo thời gian.
Chúng tôi tin rằng, không có công trình nào giống nhau – bởi mỗi gia chủ có một câu chuyện, một gu sống riêng. Và nhiệm vụ của Open Space là giúp kể câu chuyện đó bằng ngôn ngữ thiết kế.
🌿 5. Feedback – Thước đo chân thật nhất của chất lượng
Khách hàng không cần lời quảng cáo – họ cần kết quả thực tế. Chính vì vậy, Open Space luôn xem feedback khách hàng là thước đo đáng tin cậy nhất.
Một số phản hồi gần đây:
🌿 “Tôi đánh giá cao sự chuyên nghiệp, đặc biệt là khâu quản lý tiến độ và giám sát công trình. Tất cả đều rõ ràng và đúng cam kết.”
🏡 “Không gian sống đúng như tôi mong đợi: tiện nghi, thanh lịch, và nhiều ánh sáng. Đội ngũ rất tinh tế trong từng chi tiết.”
Mỗi dòng review là một lời cảm ơn, cũng là cam kết tiếp tục giữ vững chất lượng, uy tín và tinh thần tận tâm trong từng dự án sắp tới.
🌳6. Open Space – Hành trình từ niềm tin đến giá trị sống
Hơn 15 năm qua, Open Space không chỉ là một đơn vị thiết kế & thi công, mà là người bạn đồng hành của hàng trăm gia đình Việt.
Chúng tôi tin rằng, một không gian tốt có thể thay đổi chất lượng sống – giúp con người cảm thấy hạnh phúc, cân bằng và kết nối hơn mỗi ngày.
✨Kết luận: Niềm tin đến từ trải nghiệm thật
Những lời khen, lời góp ý, hay thậm chí là phản hồi nhỏ từ khách hàng đều là “kim chỉ nam” để Open Space hoàn thiện mỗi ngày.
Với chúng tôi, không có dự án nào chỉ là “công trình” – mà là một câu chuyện sống động về tổ ấm, cảm xúc và giá trị bền vững.
👉 Khám phá thêm các dự án thực tế và câu chuyện khách hàng tại: https://openspace.com.vn/danh-sach-du-an/
📩Liên hệ ngay để được chuyên gia tư vấn miễn phí!
——–
CÔNG TY TNHH THIẾT KẾ – XÂY DỰNG KHÔNG GIAN MỞ (OPEN SPACE)
📍 Địa chỉ: 384/13 Cộng Hòa, P.Tân Bình, TP.HCM
📞 Hotline: (+84) 28 3 811 8806 – (+84) 397 78 05 78 – (+84) 387 78 05 78
📧 Mail: contact@openspace.com.vn
🌐 Fanpage: https://www.facebook.com/openspace.com.vn/





























